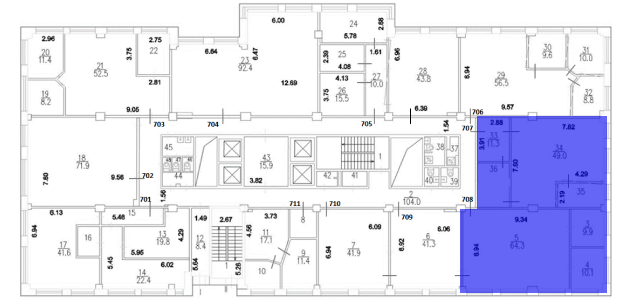
План здания: Осенний бульвар, 23 (БЦК-1)
7 этаж здания БЦК-1. Готовый к аренде офис площадью 164,2 кв.метров.
Готовый к аренде офис площадью 164,2 кв.м. Арендная плата в месяц 584 280,00 рублей,
включая НДС.
- Помещение занято
Посмотрите на свободные площади (они выделены цветом на плане). Для отправки заявки на аренду помещения выберите на плане нужное вам помещение и кликните левой кнопкой мыши по нему. Вы попадете в форму электронной заявки. Заполните ее и нажмите кнопку "Оформить заказ". После этого с вами свяжется сотрудник БЦ "Крылатский". Спасибо!



